Seconda fase: studio di progettazione edile

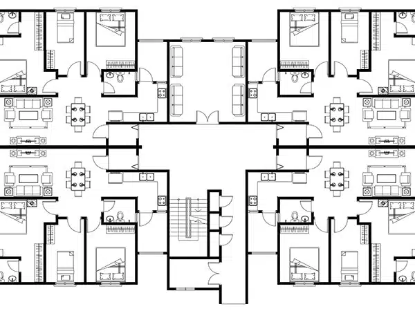
La seconda fase del processo, si concretizza con lo studio di progettazione edile sia che si parli di ristrutturazioni sia che si parli di nuovi edifici. Architetti, ingegneri e progettisti daranno forma a tutte quelle idee emerse dal concept per rispondere alle tue esigenze sia estetiche che funzionali.

Per uno studio di progettazione edile di lusso, scegli la nostra azienda. Contattaci telefonicamente o tramite mail per ricevere ulteriori dettagli. Operiamo su Modena e Reggio Emilia.

%

Progettazione in Bio

%

Progettare edifici di NZEB

%

Riduzione tempi di lavoro del 33%

Utilizzo del BIM

La nostra progettazione viene eseguita in BIM (Building Information Modelling). Questo modello contiene, in modo integrato componenti architettonici, strutturali e impiantistici ognuno dei quali contiene al suo interno ulteriore e approfondite informazioni (funzionali, economiche, tecniche…) per la realizzazione dell’immobile.

Palazzine NZEB

Inoltre, gli edifici verranno progettati con il metodo NZEB (Nearly Zero Energy Building) ossia immobili che consumano una quantità molto ridotta di energia per il riscaldamento, il raffreddamento, la produzione di acqua, il funzionamento degli elettrodomestici, l’illuminazione e la ventilazione.

Riduzione delle tempistiche

La nostra progettazione è accurata e tiene in considerazione diversi aspetti. Così facendo, abbiamo la possibilità di verificare che al 99% non ci siano interferenze sul cantiere, che non ci siano errori di costruzione, tubi mancanti o progettati male. In questo modo si evitano perdite di tempo e potrai giovare di una riduzione dei tempi di lavoro del 33%.

Risultato ottimale senza perdite di tempo

La progettazione è il fulcro della nostra realtà. Per mezzo di una progettazione precisa e oculata è possibile prevedere e risolvere tutti gli eventuali problemi che potrebbero sorgere in cantiere e di conseguenza garantire la sicurezza di tutta la struttura. In questo modo il risultato sarà ottimale, senza perdite di tempo e senza incorrere in inconveniente e ostacoli di percorso.

Contattaci per avere LA TUA offerta